Interieur
Exterieur
Andere
Slaapkamers --
Badkamers --
WC 1
Woonkamer --
Keuken --
Beglazing --
Verwarming --
Tuin Neen
Tuin oppervlakte NvT
Terras --
Terras oppervlakte --
Orientatie zuidwesten
EPC --
Bouwjaar 1971
Parking/Garage --
Gemeenschappelijke lasten -- €/mnd
Buurt niet gelegen in een overstromingsgevoelig gebied
Gebied --
Beschrijving
Uitstekend gelegen handelspand te huur in Edegem
De ruimte kan gebruikt worden als kapsalon, schoonheidsinstituut, laserkliniek, huidcentrum,... Bespreek je graag jouw ideeën? Aarzel dan zeker niet om ons te contacteren om de mogelijkheden samen te bekijken via het nummer 015 65 50 05 of via e-mail info@immosir.be.
Indeling
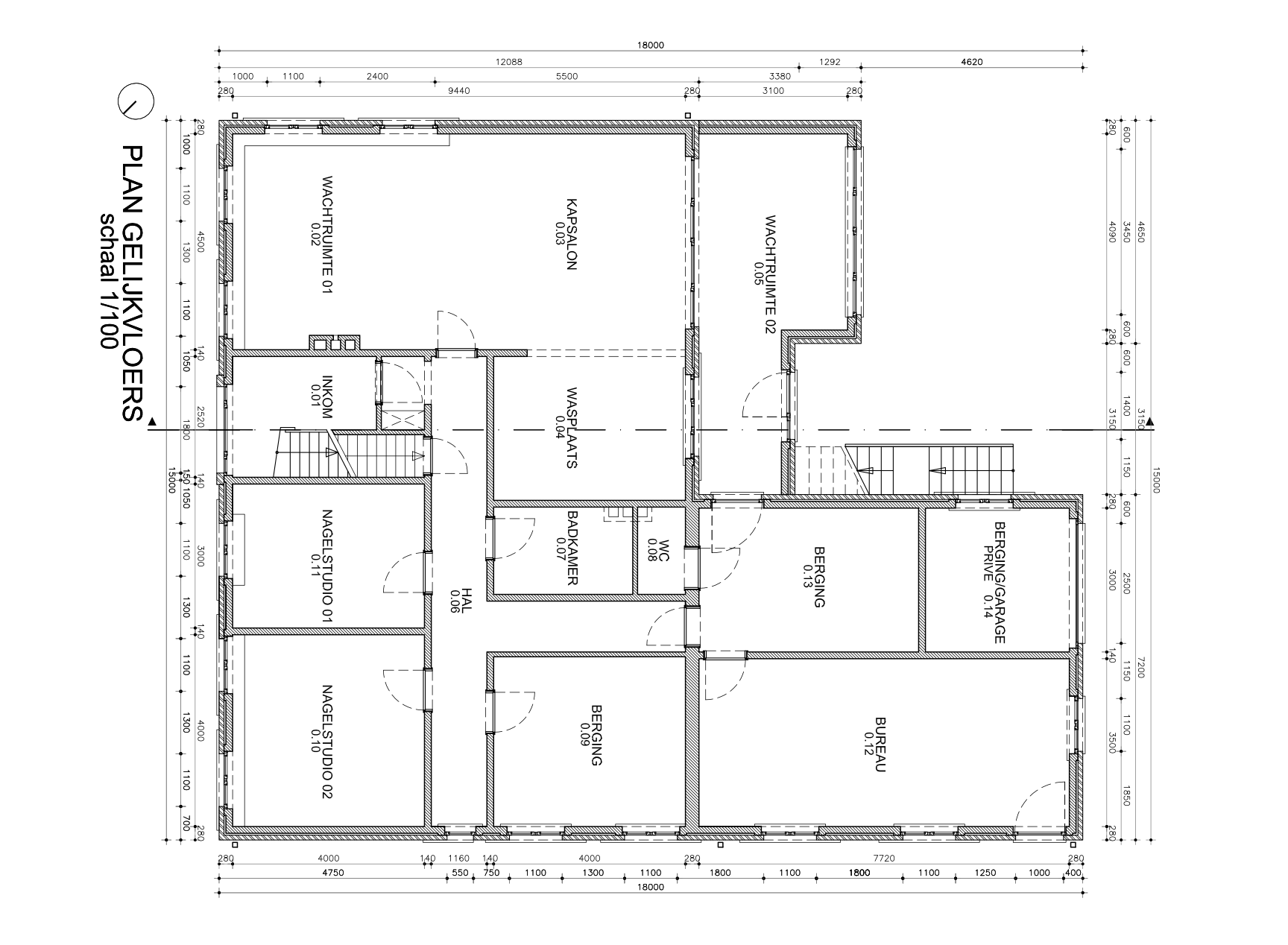
Indeling: inkom, kapsalon/grote ruimte (42,48m²), veranda (dient nu als wachtruimte) 18m², ruimte 1: 12m², ruimte 2: 16m², ruimte 3: 18m² en een ingerichte keuken. Ook is er een aparte bureauruimte met mogelijks aparte ingang (23,52m²). Er is een gastentoilet, droge kelder dat kan dienen als archief of stockruimte en een grote tuin.
Er is voldoende parkeergelegenheid vlak voor het handelspand.
Concreet
Fantastisch gelegen pand en ideaal voor wie een eigen schoonheidssolon of kapsalon zou willen uitbaten.
Je kan het plan van het handelspand gemakkelijk downloaden via onze website www.immoSiR.be bij "documenten".
Beschikbaarheid: ten vroegste vanaf 01/03/2024 (af te spreken met de huidige huurder).
Een deel van de inboedel kan overgenomen worden (dit dient besproken te worden met de huidige huurder)
Wens je graag een bezoek? Neem hiervoor telefonisch contact met ons op (015 65 50 05) dan plannen we samen een afspraak in.
Documenten
Mechelsesteenweg 136 , 2650 Edegem
> 1000 km > 3000 km > 4000 km > 3500 km
Dicht bij:
Winkels
Centrum
Openbaar Transport
Snelweg

